詳細介紹
無機特級防火卷簾門
|
適用于不設自動噴淋系統的場合,節能,節省投資 |
|
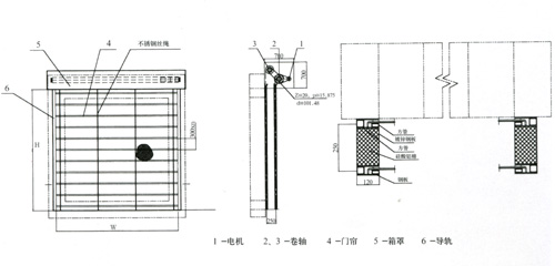
無機布防火卷簾門示意圖
無機特級防火卷簾門實拍圖 |

歡迎進入快速門廠家官網!

關鍵詞:工業快速門 工業提升門 物流裝卸貨設備 冷庫保溫門
快速門系列產品Product
西朗門業(蘇州)有限公司
總機:0512-66575355
手機:17798578460
傳真:0512-66575311
郵箱:yyy@seppes.com.cn
地址:江蘇省蘇州市吳中區木瀆鎮走馬塘路59號4幢